call us
93 116 16 16
call us
93 116 16 16
Toggle navigation
Home
Sales
Flats
Premises
Offices
Singular Buildings
Rent
Premises
Offices
Traspasos
En Rentabilidad
Services
Contact
Ref.
Search
Buy
Rent
Trade transfer
Property Type
Flats
Comercial Premises
Offices
Singulars Buildings
In
Barcelona
Badalona
Barcelona
Castellar del Vallès
L'Hospitalet de Llobregat
Location
Rooms
Choose rooms
1 or more
2 or more
3 or more
4 or more
5 or more
Bathrooms
Choose bathrooms
1 or more
2 or more
3 or more
4 or more
Features
Air conditioning
Furnished
Lift
Heating
Garage
Terrace
Storage Room
Price
€
Search
Searcher
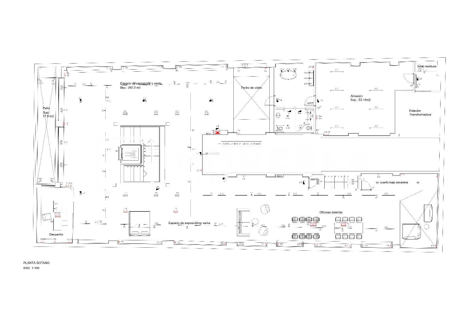
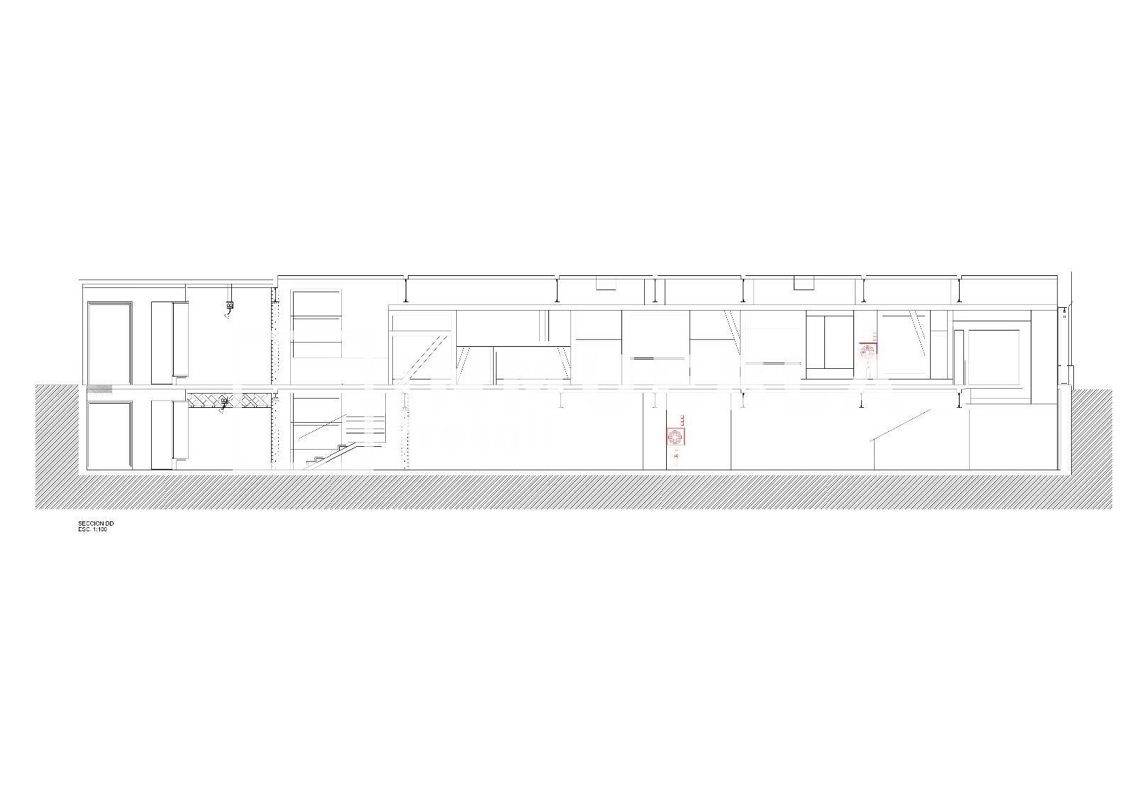
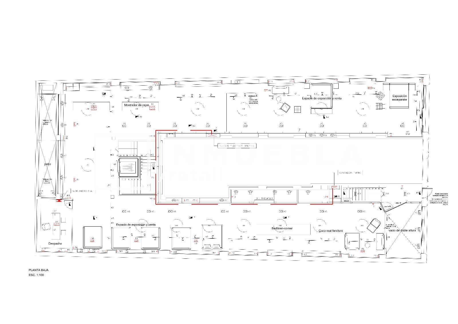
Comercial Premise for rent in Barcelona (Sarrià - Sant Gervasi)
(ref.2220)
Share on
WhatsApp
Facebook
X
LinkedIn
Email
Copiar URL
Go back
Next
Prev.
25,000 €/month
ref. 2220
1954
Año de construcción
12,594 ft
2
constructed area
11,453 ft
2
usable floor space
Condition
Disabled facilities
Energy Rating
(F)
SHOW
Electricity
Gas
Water
Telephone
Internet
Disabled access
Comercial Premise for rent in Barcelona, with 12,594 ft
2
, with Showcase, Emergency exit and Disabled access.
The address of the property is approximate.
-
-
For more information about this property, please fill out the form:
Full name *
e-mail *
Telephone
Message *
I have read and accept the legal conditions and privacy policy.
Send
Home
Sales
Rent
Services
Contact
© 2026 Inmuebla Retail |
Legal advice
|
Data protection
|
Cookies
|
Creado con Mobilia