Ref
Busco
Tipo
En
Zona
Habitaciones
Baños
Características
Precio

Ámplia superficie comercial para uso de oficina. (ref.2276)

Oficina en venta en Barcelona (Eixample )

4.860.000 €
ref. 2276
1970 Año de construcción
1.582 m2 construidos
1.582 m2 útiles
 
 Calefacción Independiente

Estado Muy bueno
Ascensor
Aire acondicionado
Zonas comunes
Adaptado
Calificación Energética En trámite
Luz
Agua
Teléfono
Internet
Intranet
Conserje
Vigilancia accesos
Acceso discapacitados

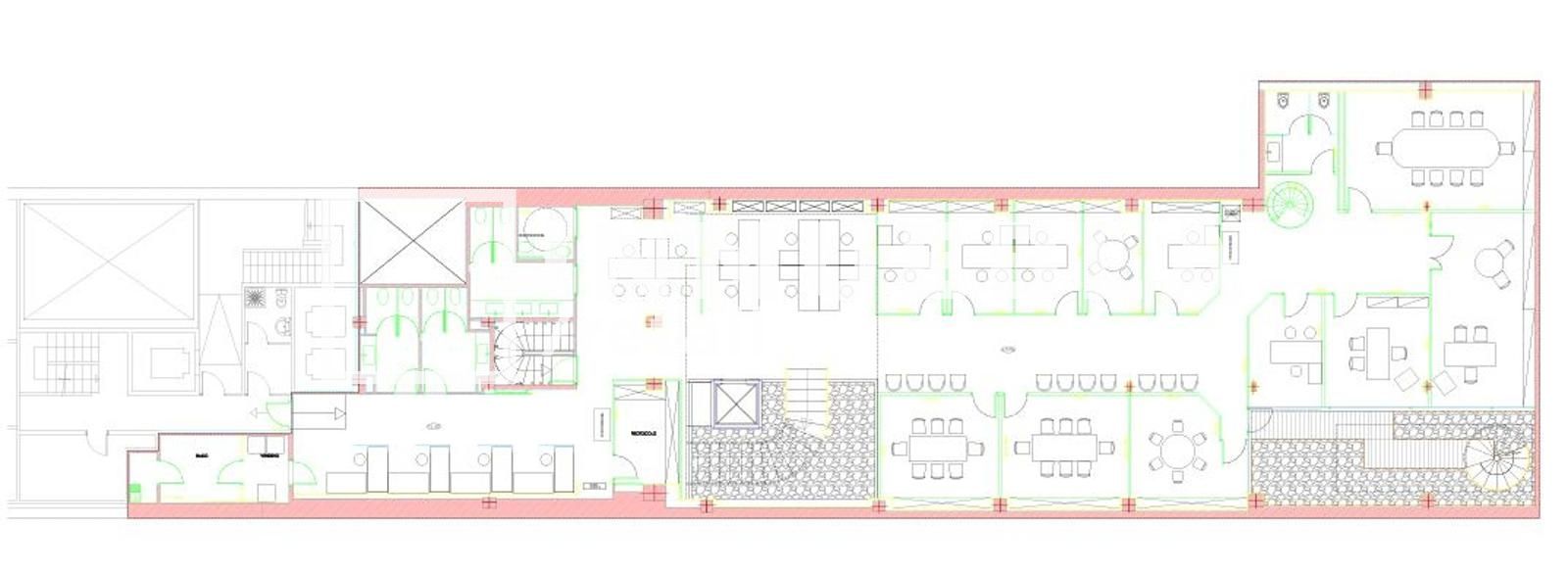
Magnífica oficina en Rambla Catalunya con acceso directo desde el vestíbulo del edificio, totalmente corporativo. Se compone de una superficie distribuida en dos plantas de 550 m² y 650 m² además de un sótano de 382m² . Todas las superficies son totalmente diáfanas aunque actualmente está compartimentada mediante mamparas modulares.

Dispone de ascensor de uso privado, suelo técnico, climatización de frio y calor, luces de emergencia, detector de incendios, circuito cerrado de seguridad y alarma. El edificio dispone de servicio de conserjería y aparcamiento.

La rambla de Catalunya es una de las vías más céntricas de Barcelona (España), que discurre por la derecha de l'Eixample en dirección mar-montaña entre el paseo de Gracia y la calle Balmes. Nace en la plaza de Catalunya y acaba en la avenida Diagonal. Es un paseo básicamente comercial donde abundan las tiendas de moda y una amplia oferta de locales de restauración.

Es la continuación de las populares Ramblas hacia l'Eixample y exceptuando el primer tramo (plaza de Catalunya - Gran Vía), donde hay un aparcamiento subterráneo, el resto tiene un paseo central bordeado de tilos con una escultura en cada extremo.

La dirección del inmueble es aproximada.

Si desea más información sobre esta propiedad, por favor, rellene el cuestionario: